Trosobni stanovi
Makarska
Šifra: S461 - zgrada B
Lokacija: Makarska
Veličina: 173,30m2
cijena m2: 4800 €/m2
Stan sa privatnim bazenom, liftom i dvije garaže iznad centra Makarske
Sa sjeverne strane stana nalazi se privatni bazen koji pripada isključivo stanu!
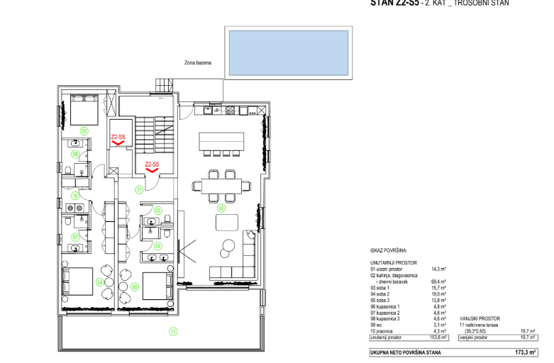
Luksuzni trosobni stan u Makarskoj iznad centra grada sa fantastičnim pogledom na more, otoke i grad. Stan zauzima cijelu etažu zgrade, ukupne neto površina iznosi 173,30 m2. Smješten je na 2. katu do kojeg se dolazi zasebim liftom.
Stan se sastoji od ulaznog prostora, dnevnog boravka sa kuhinjom i blagovaonom, tri spavaće sobe, 3 kupaonice, wc -a, praonice i prostrane natkrivene terase koja se proteže cijelom duljinom etaže na koji se pristupa iz dnevne i spavaćih soba.
Sa sjeverne strane stana nalazi se privatni bazen koji pripada isključivo stanu!
Uz stan pripadaju dva garažna parking mjesta čija ukupna cijena iznosi 40.000 €.
Zgrada se gradi iznimno kvalitetno i luksuzno će se opremiti. Kupaonice sa podnim grijanjem, bešumne odvodne cijevi (Geberit), sanitarije visokog standarda, podžbukne sanitarne baterije Grohe, kanalice u tuševima Geberit, keramika 1. klase.
U svakoj prostoriji je klima (Mitsubishi ili Daikin multi - split sistem), parket je 1. klase, sobna vrata sa sakrivenim šarkama, sigurnosna ulazna vrata, Schuco aluminijska stolarija sa aluminijskim roletama, staklene ograde na balkonima. Fasada je sa kamenom vunom 8 cm, video nadzor zajedničkih prostorija.
Zgrada je smještena na odličnoj lokaciji samo 600 m od rive i centra grada.
Specifikacija :
a) Grijanje/hlađenje : dizalica topline sa podnim grijanjem (Penthouse stan). Podno grijanje (Elektro). Klima multi - split sistem u svim sobama (MITSUBISHI ili DAIKIN).
b) Kupaonica : Podžbukne sanitarne baterije (Grohe). Kanalice u tuševima (Geberit). Bešumne odvodne cijevi (Geberit). Izvedba dovoda vode u cijevima inox izvedbi. Sanitarna oprema visokog standarda.
c) Podovi : Parket 1. klase do 40,00 €/m2 listne cijene (po izboru kupca). Keramika 1. klase do 40,00 €/m2 listne cijene (po izboru kupca).
d) Struja i voda : Smart home (penthouse stan). Bticino program prekidača i utičnica. Dovod instalacije vode na terasi.
e) Vrata i prozori : Schuco aluminijska stolarija sa staklenim ogradama i roletama. Ulazna vrata u stanove sa visokim standardima sigurnostima. Sobna vrata sa skrivenim šarkama.
f) Zgrada : Video nadzor zajedničkih prostorija. Oblaganje fasade kamenom (garažni nivo i ulazne stube). Parking mjesta u garaži.
Za sve informacije kao i mogućnost razgledavanja obratite nam se u Adrion agenciju.
nekretnine@ab-adrion.hr
+385 21 678 555
+385 99 4945 111
Detalji nekretnine
Šifra: S461 - zgrada B
Cijena: 831840
Akcija cijena: 0
Površina: 173,30
cijena m2: 4800 €/m2
Kat: 2. kat
Ukupan broj katova: suteren, prizemlje i 3 kata
Balkon (m2): 31,09 m2
Terasa (m2): 14,41 m2
Broj spavaćih soba: 3
Broj kupaonica: 3
Udaljenost od mora (m): 650 m
Udaljenost od centra (m): 1000 m
Godina izgradnje: U izgradnji
Ukupan broj stanova: 12
Razred energetske učinkovitosti: U izradi
Značajke nekretnine
- Keramičke pločice 1. klase
- Potpuno opremljeno kupatilo
- Pristupni put - asfaltiran
- U izgradnji
- Iznad jadranske magistrale
- Lift
Šifra: S461 - zgrada B
Lokacija: Makarska
Veličina: 173,30m2
cijena m2: 4800 €/m2









