NOVOGRADNJA
Makarska
Šifra: N46
Lokacija: Makarska
Veličina: 65m2
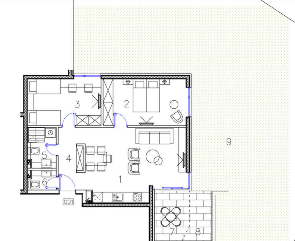
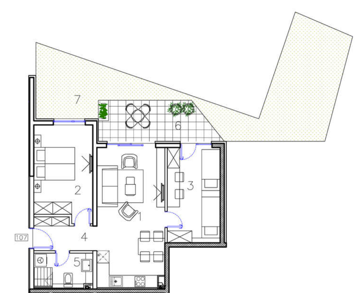
Dvosobni stanovi u novogradnji na zapadnom dijelu Makarske
Vanjsko parking mjesto iznosi 15.000 €.
Predstavljamo vam novu stambenu zgradu smještenu u mirnom i urbanom dijelu grada, idealnu za sve koji traže savršen spoj komfora, kvalitete i praktičnosti.
Savršena lokacija u blizini osovne škole, vrtića, dućana i svih važnih sadržaja.
Zgrada je projektirana prema najvišim standardima gradnje s naglaskom na energetsku učinkovitost, moderan dizajn i funkcionalnost svakog kvadrata.
Dvosobni stanovi s površinom od 65 m2. Svaki stan ima balkon/lođu, otvoreni dnevni boravak s kuhinjom i blagovaonicom, dvije spavaće sobe, kupaonicu i vanjsko parking mjesto.
Visokokvalitetni materijali i završna obrada, potpuno opremljena kupaonica, lift, privatna parkirna mjesta, klimatizacija, keramičke pločice prve klase, protuprovalna vrata...
Useljenje planirano početkom 2027. godine
Za više informacija i rezervacije javite na e-mail ili broj telefona/mobitela :
nekretnine@ab-adrion.hr
+385 21 678 555
+385 99 4945 111
Detalji nekretnine
Šifra: N46
Cijena: 0
Akcija cijena: 0
Površina: 65
Kat: podrum + prizemlje + 4.kata
Udaljenost od mora (m): 700 m
Udaljenost od centra (m): 500 m
Godina izgradnje: U izgradnji
Razred energetske učinkovitosti: U izradi
Značajke nekretnine
- Protuprovalna vrata
- Keramičke pločice 1. klase
- Kanalizacija
- Potpuno opremljeno kupatilo
- Pristupni put - asfaltiran
- Klimatizacija
- Vlasnički list
- Građevinska dozvola
- Parkirno mjesto
- Južno orijentirana nekretnina
- Pogled na Biokovo
- Pogled na more
- U izgradnji
- Iznad jadranske magistrale
- Lift
Šifra: N46
Lokacija: Makarska
Veličina: 65m2








